Thiết Kế & Thi Công Chung Cư Iris Gaden
Dự án:
Thiết Kế & Thi Công Chung Cư Iris Gaden
Khách hàng:
Anh Duy chị Trang
Địa điểm:
30 Trần Hữu Dực - Nam Từ Liêm - Hà Nội
Thi công
Trường Yến Architecture
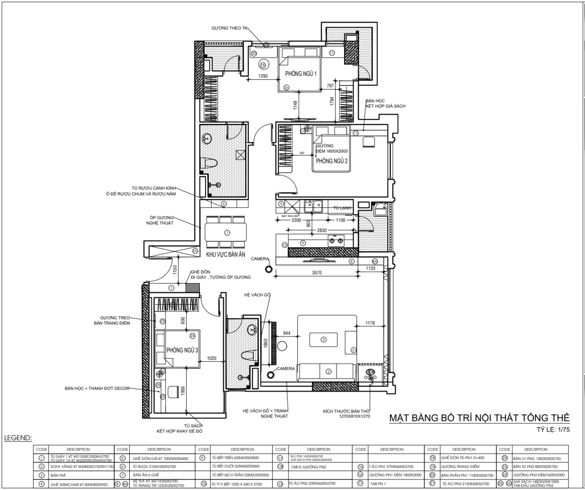
Căn hộ Iris Garden (p117) là một trong những công trình trọn gói tiêu biểu được Trường Yến thực hiện, với định hướng tạo nên không gian sống tinh tế, tiện nghi và mang đậm dấu ấn cá nhân của từng thành viên trong gia đình. Công trình không chỉ dừng lại ở thiết kế nội thất mà còn được cải tạo phần thô, nổi bật là việc giật trần phòng khách để lắp đặt điều hòa âm trần cassette – một giải pháp vừa thẩm mỹ vừa tối ưu hiệu suất sử dụng.
Không gian phòng khách gây ấn tượng với vách trang trí sau sofa tích hợp khu thờ, thiết kế tinh tế, đảm bảo sự trang nghiêm mà vẫn hài hòa với tổng thể. Khu vực bàn ăn được xử lý nổi bật với vách gỗ vân chéo kết hợp gương soi, tạo chiều sâu và tăng cảm giác sang trọng. Liền mạch trong bố cục là hệ tủ rượu cánh kính, vừa là điểm nhấn trang trí, vừa tối ưu trưng bày và lưu trữ.
Toàn bộ nội thất sử dụng MDF lõi xanh chống ẩm phủ Melamine và Acrylic của An Cường, đảm bảo độ bền, dễ vệ sinh và giữ màu sắc bền vững theo thời gian. Hai phòng ngủ của các bé được thiết kế riêng biệt theo sở thích từng con, tạo không gian cá nhân đầy cảm hứng cho việc học tập và nghỉ ngơi.
Từ cải tạo phần thô đến hoàn thiện nội thất, công trình được triển khai chỉn chu, đúng tiến độ và đồng bộ chất lượng. Bảng báo giá chi tiết đã được đính kèm ở cuối bài, thể hiện sự minh bạch và chuyên nghiệp trong cách làm việc của Trường Yến.
1: MẶT BẰNG.

2: 3D & THỰC TẾ PHÒNG KHÁCH BẾP.





3: 3D & THỰC TẾ PHÒNG MASTER.


4: 3D & THỰC TẾ PHÒNG CON TRAI.
Phương án 1.

Phương án 2.



6: 3D & THỰC TẾ PHÒNG CON GÁI.
Phương án 1.

Phương án 2.


7: BÁO GIÁ CHI TIẾT NỘI THẤT.