Thiết Kế & Thi Công Chung Cư Iris Gaden
Thiết Kế & Thi Công Chung Cư Iris Gaden
Thiết Kế & Thi Công Chung Cư Iris Gaden
Chị Thuỷ
30 Trần Hữu Dực - Nam Từ Liêm - Hà Nội
308 Triệu
133 m2
Trường Yến Architecture

Căn hộ tại Iris Garden (p132) là một trong những công trình thiết kế và thi công tiêu biểu của Trường Yến – nơi mà yếu tố thẩm mỹ, công năng và sáng tạo được hòa quyện một cách hoàn hảo. Không chỉ tối ưu từng mét vuông sử dụng, công trình còn mang đến một không gian sống độc đáo và đầy cảm xúc cho gia chủ.

Điểm nhấn đặc biệt nhất của căn hộ chính là khu tiểu cảnh ướt được bố trí ngay trong phòng khách – một thiết kế hiếm gặp trong căn hộ chung cư, vừa tạo điểm nhấn phong thủy, vừa mang lại cảm giác thư giãn, gần gũi với thiên nhiên. Không gian sinh hoạt chung được mở rộng thị giác nhờ hệ vách gương lớn tại khu bàn ăn, kết hợp cùng tủ rượu cánh kính, mang đến sự sang trọng và thoáng đãng.

Toàn bộ nội thất sử dụng gỗ công nghiệp MDF lõi xanh chống ẩm phủ Melamine An Cường, bền bỉ và dễ vệ sinh, phù hợp với nhu cầu sinh hoạt hiện đại. Phòng ngủ con được bố trí thông minh với giường tầng đa năng, tích hợp ngăn chứa đồ, kệ học và không gian chơi – vừa tiết kiệm diện tích, vừa tạo sự thích thú cho trẻ nhỏ.

Từ thiết kế 3D đến thi công hoàn thiện, Trường Yến luôn đảm bảo đúng tiến độ, đúng chi tiết và đồng bộ chất lượng. Bảng báo giá chi tiết đã được đính kèm cuối bài, giúp khách hàng tham khảo rõ ràng về chi phí thực tế – minh bạch, chuyên nghiệp và đáng tin cậy.

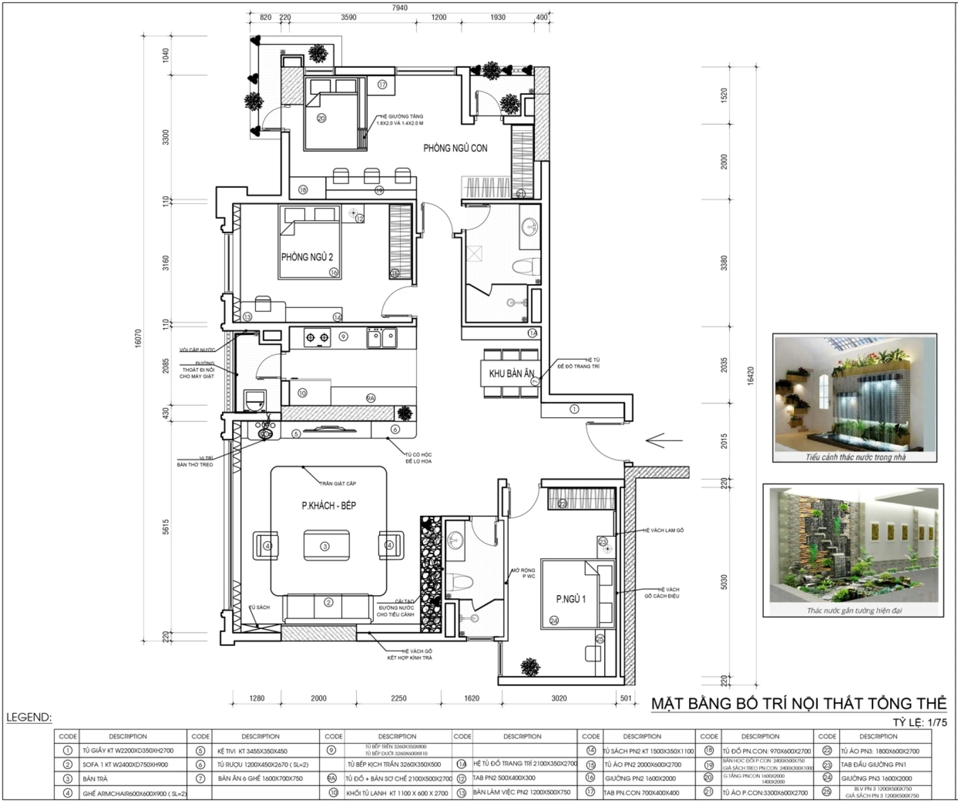
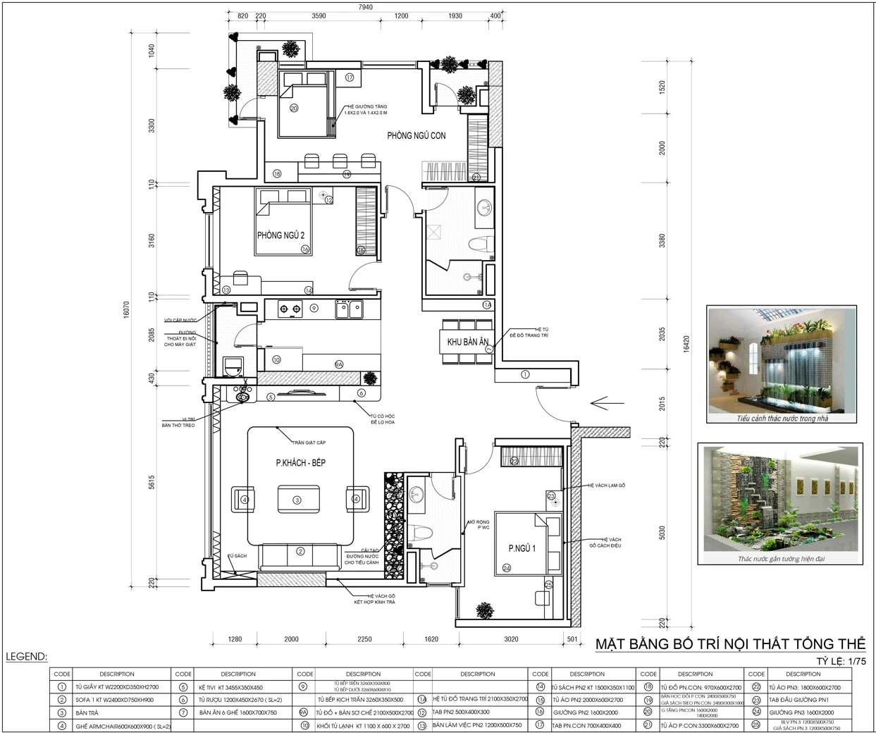
1: MẶT BẰNG 

CHỊ THUỶ-1
Mặt bằng này có chút thay đổi so với thiết kế, vì chủ nhà thay đổi theo công năng sử dụng của chủ nhà.

 

2: 3D & THỰC TẾ PHÒNG KHÁCH BẾP.

1200 X 680-6

1200 X 680 10-2 1200 X 680-6
1200 x 670 5-1 1200 x 670 2-2
850 X 1200 7-1 850 X 1200 14

1200 X 680 1-5

1200 x 670 1-2

1200 X 680 3-7

850 X 1200 10 850 X 1200 5-1
1200 X 680 2-7 1200 x 720 1-1
850 X 1200 15 850 X 1200-1

1200 X 680 9-3

850 X 1200 1-3 850 X 1200 3-2
850 X 1200 17 850 X 1200 2-3

1200 X 680 8-3

850 X 1200 11 850 X 1200 6-1

3: 3D & THỰC TẾ PHÒNG NGỦ 2 CON. 

1200 X 1000

850 X 1200 12 850 X 1200 13

1200 x 720-1

1200 X 1000 3

850 X 1200 16 850 X 1200 4-2

4: BÁO GIÁ CHI TIẾT NỘI THẤT CĂN HỘ.

1-8
2-5
3-5
5-1
6-2

 

 

*Nguồn: Nội Thất Trường Yến