Thiết Kế Nội Thất Nhà Phố Kim Giang
Dự án:
Thiết Kế Nội Thất Nhà Phố Kim Giang
Địa điểm:
Kim Giang - Hà Nội
Thiết kế
Trường Yến Architecture
CÔNG TRÌNH THIẾT KẾ NỘI THẤT – EM HÒA | KIM GIANG, HÀ NỘI
Căn hộ được thiết kế theo phong cách hiện đại, tinh tế với tone màu trung tính kết hợp điểm nhấn vân gỗ ấm áp, mang lại cảm giác nhẹ nhàng, sang trọng và đầy tiện nghi. Tổng thể không gian gồm phòng khách – bếp liên thông, phòng ngủ master và hai phòng ngủ cho bé trai và bé gái, được bố trí khoa học, tối ưu công năng sử dụng. Vật liệu chủ đạo sử dụng gỗ công nghiệp An Cường phủ Melamine – Laminate – Acrylic, kết hợp phụ kiện tiêu chuẩn Hafele đảm bảo độ bền cao và thẩm mỹ vượt trội. Mỗi khu vực đều được chăm chút tỉ mỉ về ánh sáng, màu sắc, công năng và chất liệu, tạo nên một không gian sống hiện đại, tối giản nhưng vẫn ấm cúng, đúng với mong muốn ban đầu của gia chủ.
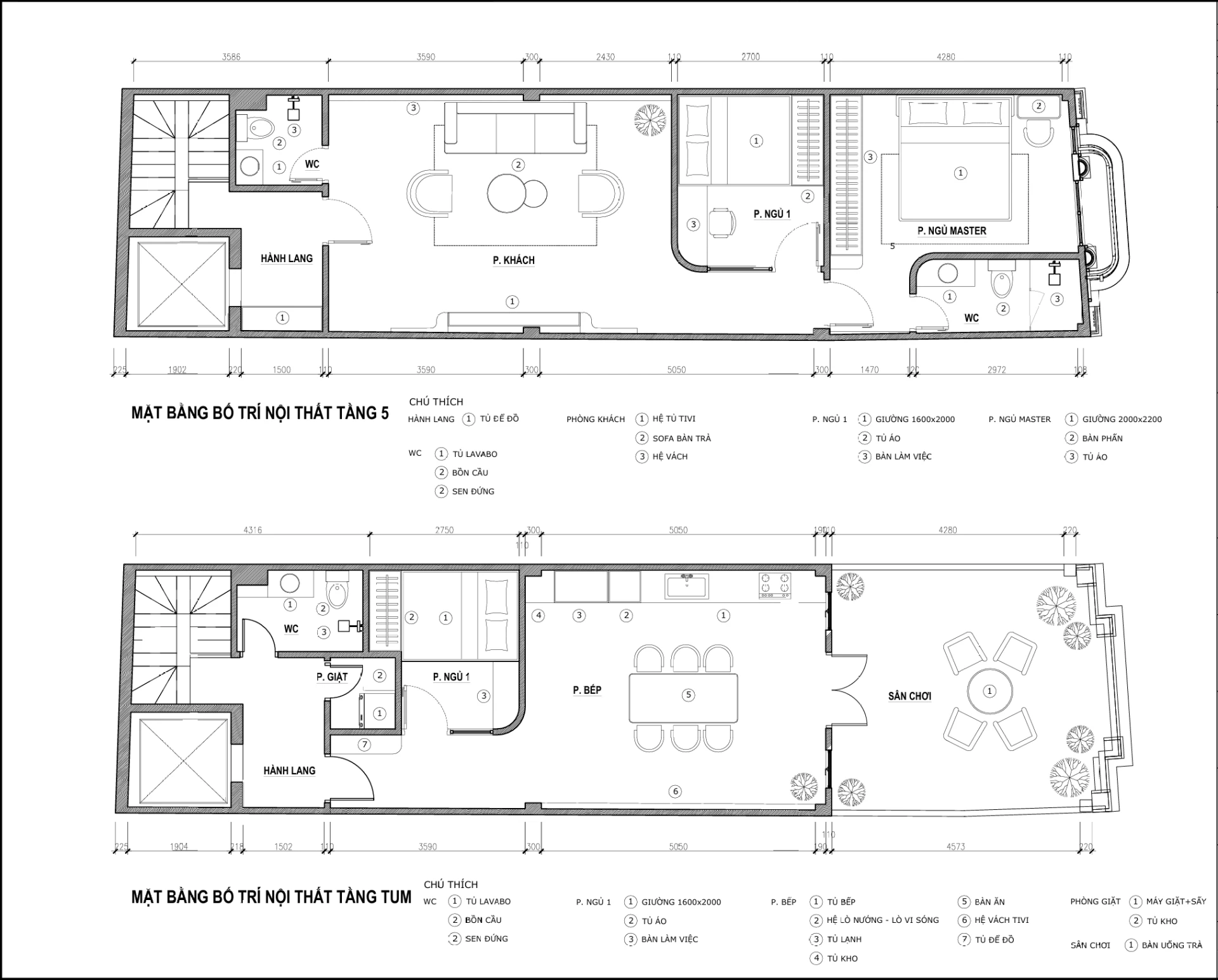
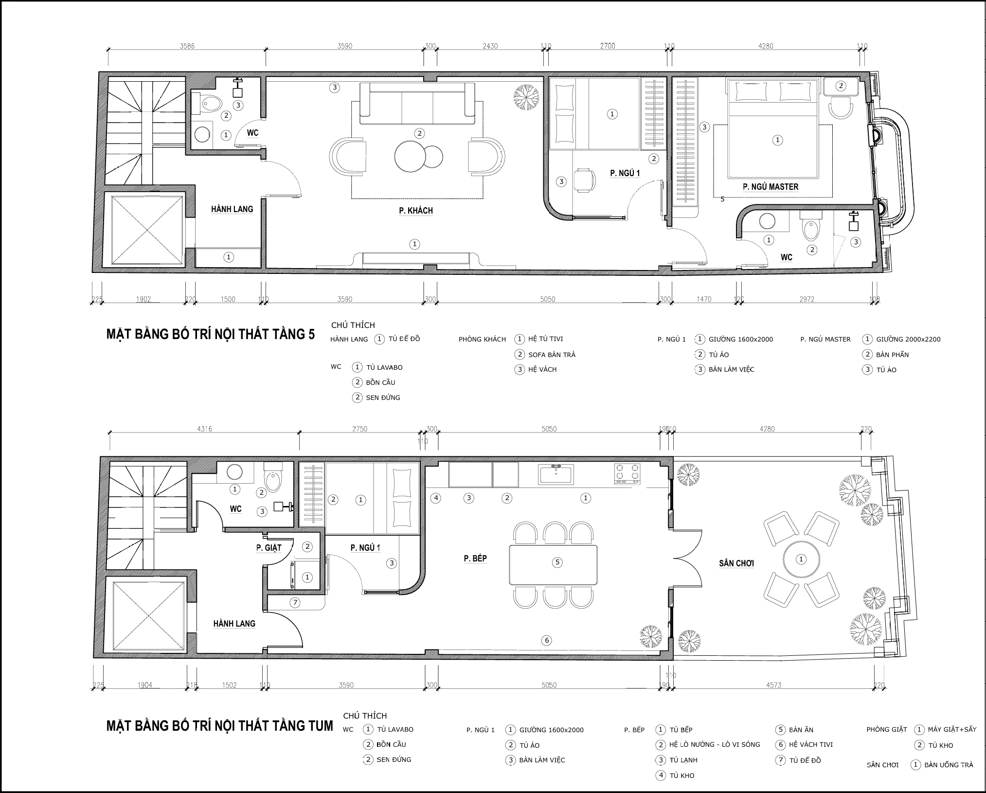
1: Mặt Bằng Nội Thất

2: Thiết Kế Nội Thất Phòng Khách





3: Thiết Kế Nội Thất Phòng Bếp






4: Thiết Kế Nội Thất Phòng Master






5: Thiết Kế Nội Thất Phòng Con Trai



6: Thiết Kế Nội Thất Phòng Con Trai Út

