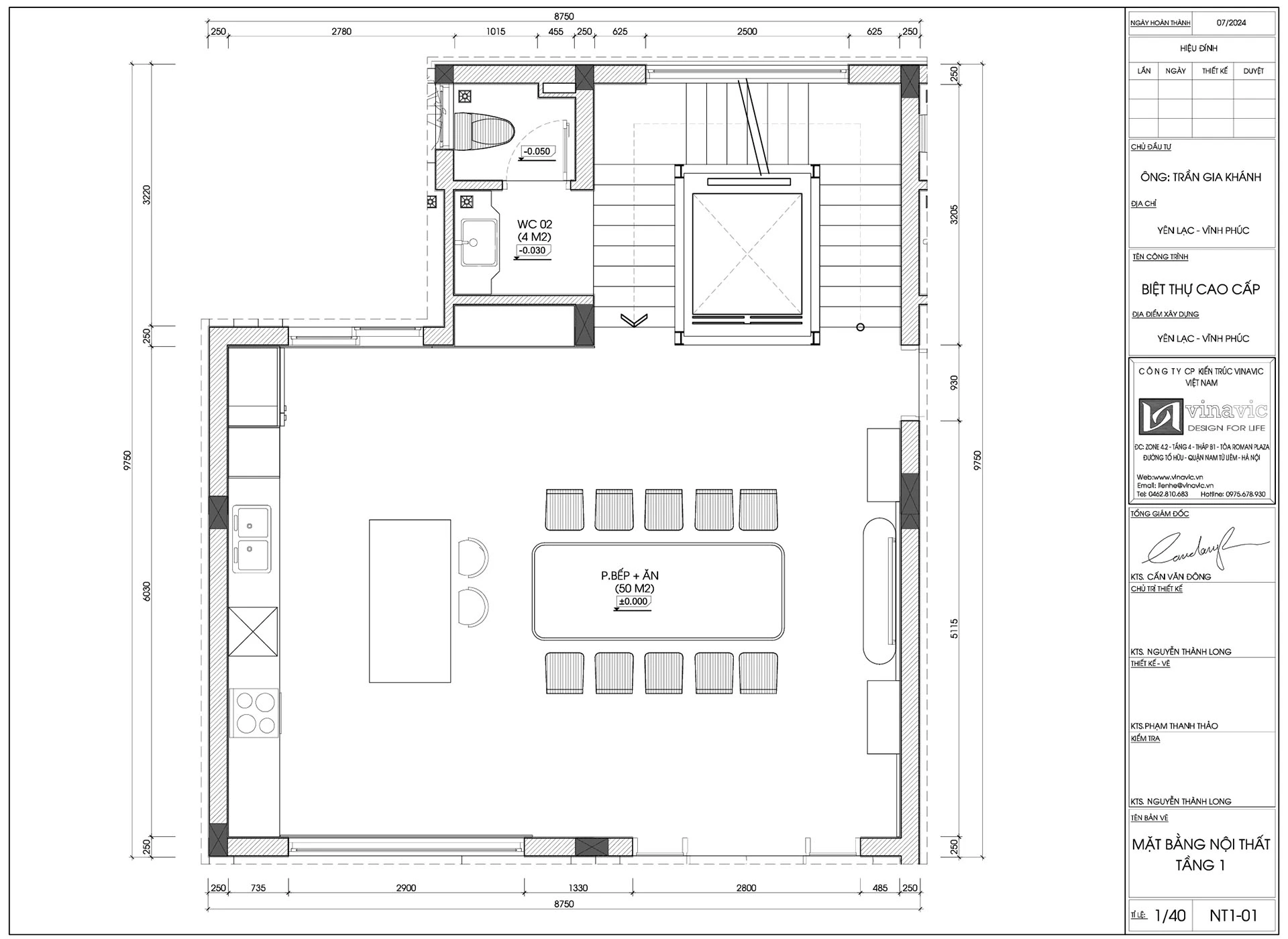
Mặt Bằng Tầng 1

1: 3D & Thực Tế Nội Thất Phòng Bếp.
🔸 Tầng 1 – Nơi bắt đầu của sự ấm cúng và tiện nghi
Phòng bếp ăn được thiết kế theo phong cách hiện đại, sử dụng chất liệu gỗ sồi sơn giả óc chó kết hợp hệ thùng tủ bếp inox 304 ba lớp, cánh Acrylic bóng gương – tạo cảm giác vừa sang trọng, vừa dễ lau chùi và bền đẹp theo thời gian. Các tấm vân đá PVC được sử dụng linh hoạt để tạo điểm nhấn và chiều sâu cho không gian.

![]() |
![]() |

![]() |
![]() |

![]() |
![]() |

![]() |
![]() |





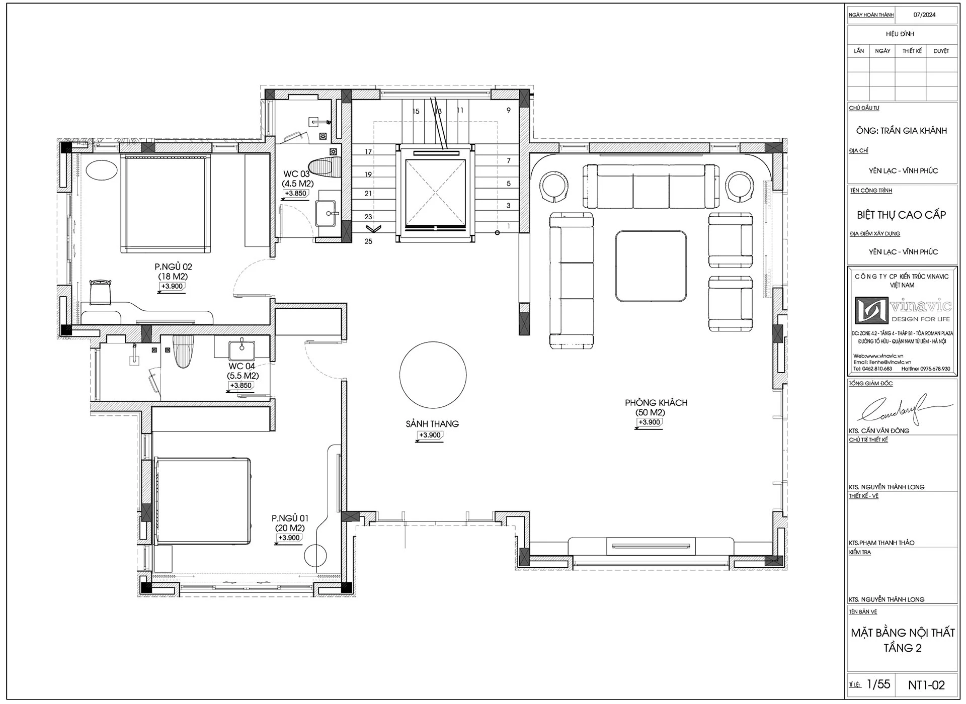
Mặt Bằng Tầng 2
🔸 Tầng 2 – Không gian tiếp khách và nghỉ ngơi đậm cá tính
Phòng khách tầng 2 nổi bật với chất liệu gỗ óc chó cao cấp, nổi bật là bộ sofa óc chó sang trọng, kết hợp hệ vách trang trí tinh xảo – tạo nên bầu không khí tiếp đón ấm áp nhưng vẫn đậm chất quý phái.
Các phòng ngủ của bà và các con sử dụng gỗ MDF chịu ẩm An Cường cho hệ tủ, giường gỗ sồi – đảm bảo cả về độ bền, công năng và sự an toàn cho người dùng.

2: 3D & Thực Tế Nội Thất Phòng Khách

![]() |
![]() |






![]() |
![]() |
![]() |
![]() |
![]() |
![]() |



![]() |
![]() |

![]() |
![]() |


3: 3D & Thực Tế Nội Thất Phòng Ngủ Bà







![]() |
![]() |

4: 3D & Thực Tế Nội Thất Phòng Ngủ Con








![]() |
![]() |

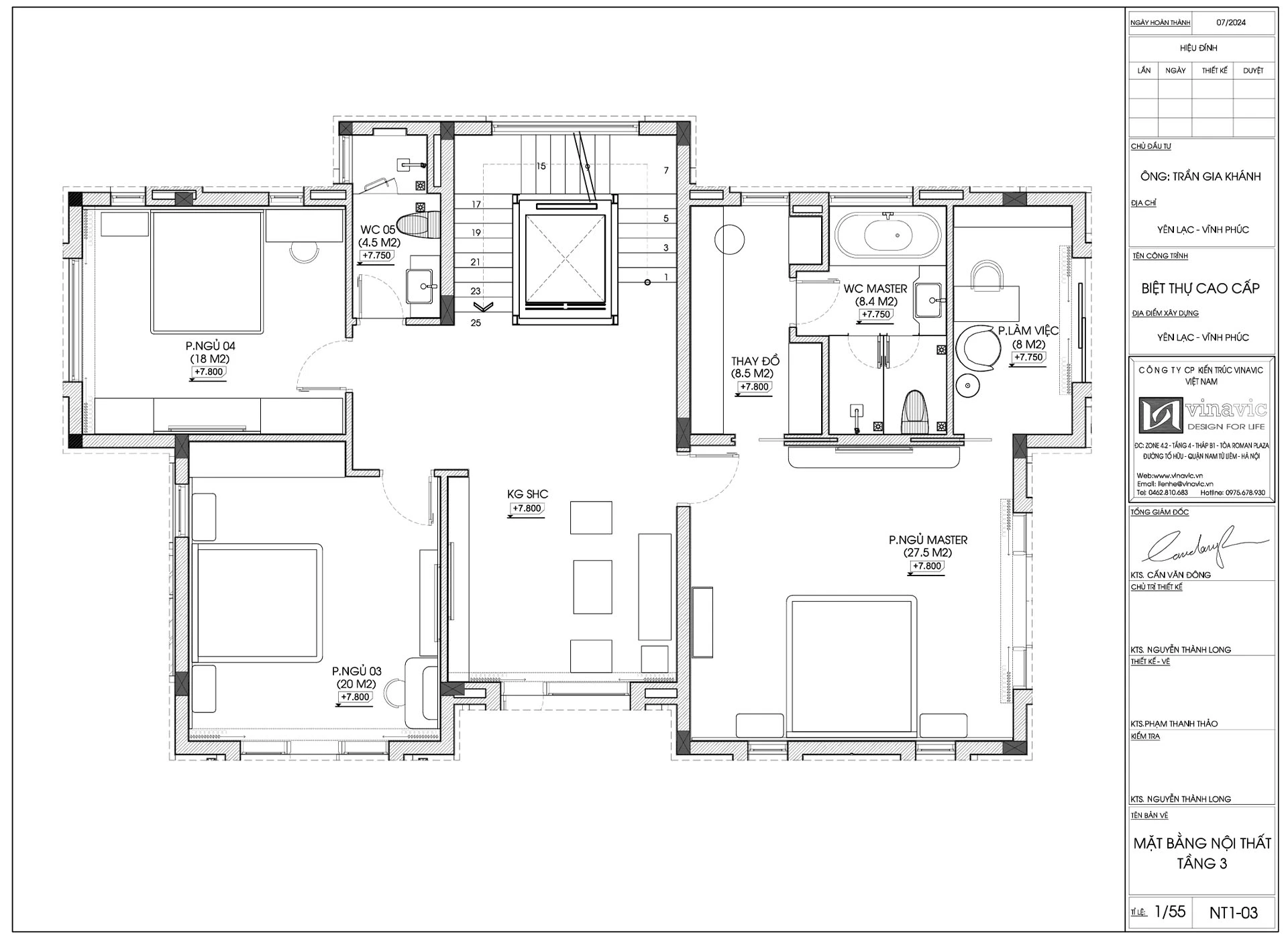
Mặt Bằng Tầng 3
🔸 Tầng 3 – Sự riêng tư và đẳng cấp của không gian cá nhân
Phòng master là trái tim của biệt thự – với hệ tủ thay đồ riêng biệt, giường gỗ sồi kết hợp vách da cao cấp tạo cảm giác êm ái, sang trọng. Không gian này mang đến trải nghiệm sống như ở resort ngay trong chính tổ ấm của gia đình.
Phòng sinh hoạt chung được bố trí hài hòa với hệ tủ trang trí, vách PVC kết hợp gương trà, tạo chiều sâu không gian và hiệu ứng ánh sáng đẹp mắt, lý tưởng cho những khoảnh khắc quây quần, thư giãn.

5: 3D & Thực Tế Nội Thất Phòng SHC

![]() |
![]() |

![]() |
![]() |


![]() |
![]() |

6: 3D & Thực Tế Nội Thất Phòng Master

![]() |
![]() |

![]() |
![]() |









![]() |
![]() |
![]() |
![]() |
![]() |
![]() |
7: 3D Nội Thất Phòng Con Trai



![]() |
![]() |
8: 3D Nội Thất Phòng Con Gái




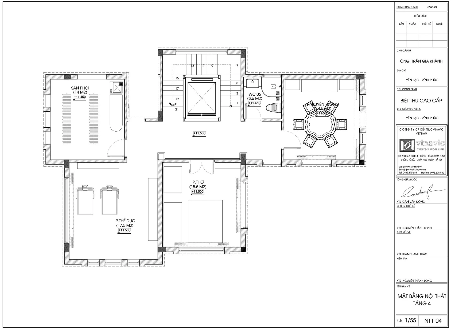
Mặt Bằng Tầng 4
🔸 Tầng 4 – Tĩnh tại và trang nghiêm
Phòng thờ sử dụng hệ vách gỗ sồi sơn màu gõ đỏ, kết hợp bộ bàn thờ lớn – nhỏ bằng gỗ hương đá, vừa trang nghiêm vừa giữ được vẻ đẹp tự nhiên của gỗ. Đây là nơi kết nối truyền thống – tâm linh – và sự tri ân dành cho tổ tiên.

9: 3D & Thực Tế Nội Thất Hành Lang

![]() |
![]() |
![]() |
![]() |
9: 3D & Thực Tế Nội Thất Phòng Thờ






![]() |
![]() |

10: 3D Nội Thất Phòng Trà



11: 3D Nội Thất PhònG Thể Dục



12: 3D Nội Thất Các Phòng WC





💬 Trường Yến – Đồng hành kiến tạo không gian sống mơ ước
Từng chi tiết trong công trình là sự phối hợp ăn ý giữa vật liệu cao cấp – công năng tối ưu – gu thẩm mỹ riêng biệt, thể hiện đúng tinh thần mà Trường Yến luôn theo đuổi:
“Thiết kế bằng trái tim – Thi công bằng chữ Tâm”.
👉 Nếu bạn đang tìm kiếm một đơn vị đồng hành vừa chuyên nghiệp, vừa tận tâm trong từng nét nội thất – Trường Yến luôn sẵn sàng lắng nghe và đồng hành cùng bạn.















































