Thiết Kế & Thi Công Chung Cư Iris Gaden
Dự án:
Thiết Kế & Thi Công Chung Cư Iris Gaden
Địa điểm:
30 Trần Hữu Dực - Nam Từ Liêm - Hà Nội
Thiết kế
Trường Yến Architecture
CÔNG TRÌNH NỘI THẤT CHỊ DUNG – IRIS GARDEN, 30 TRẦN HỮU DỰC
Phong cách hiện đại, tinh tế – Vật liệu cao cấp, bền đẹp theo thời gian
Không gian sống của gia đình chị Dung tại chung cư Iris Garden được Nội thất Trường Yến thiết kế và thi công với tinh thần "Đơn giản – Hiện đại – Đủ đầy tiện nghi", mang lại cảm giác ấm áp, sang trọng và gần gũi trong từng chi tiết.
✨ Điểm nổi bật của công trình:
Chất liệu: Toàn bộ hệ tủ, giường, vách trang trí... sử dụng gỗ công nghiệp An Cường phủ Melamine, Acrylic bóng gương và Laminate cao cấp – vừa đảm bảo tính thẩm mỹ, vừa bền màu, chống ẩm mốc tốt.
Phụ kiện: Toàn bộ phụ kiện tủ bếp và bản lề được chọn lọc từ những thương hiệu uy tín như GRRIs và Häfele, đảm bảo sự êm ái và bền bỉ theo thời gian.
Thiết kế tổng thể: Tối ưu không gian sống, tận dụng tối đa ánh sáng tự nhiên, kết hợp màu sắc trung tính hiện đại, mang lại cảm giác dễ chịu và thư thái.
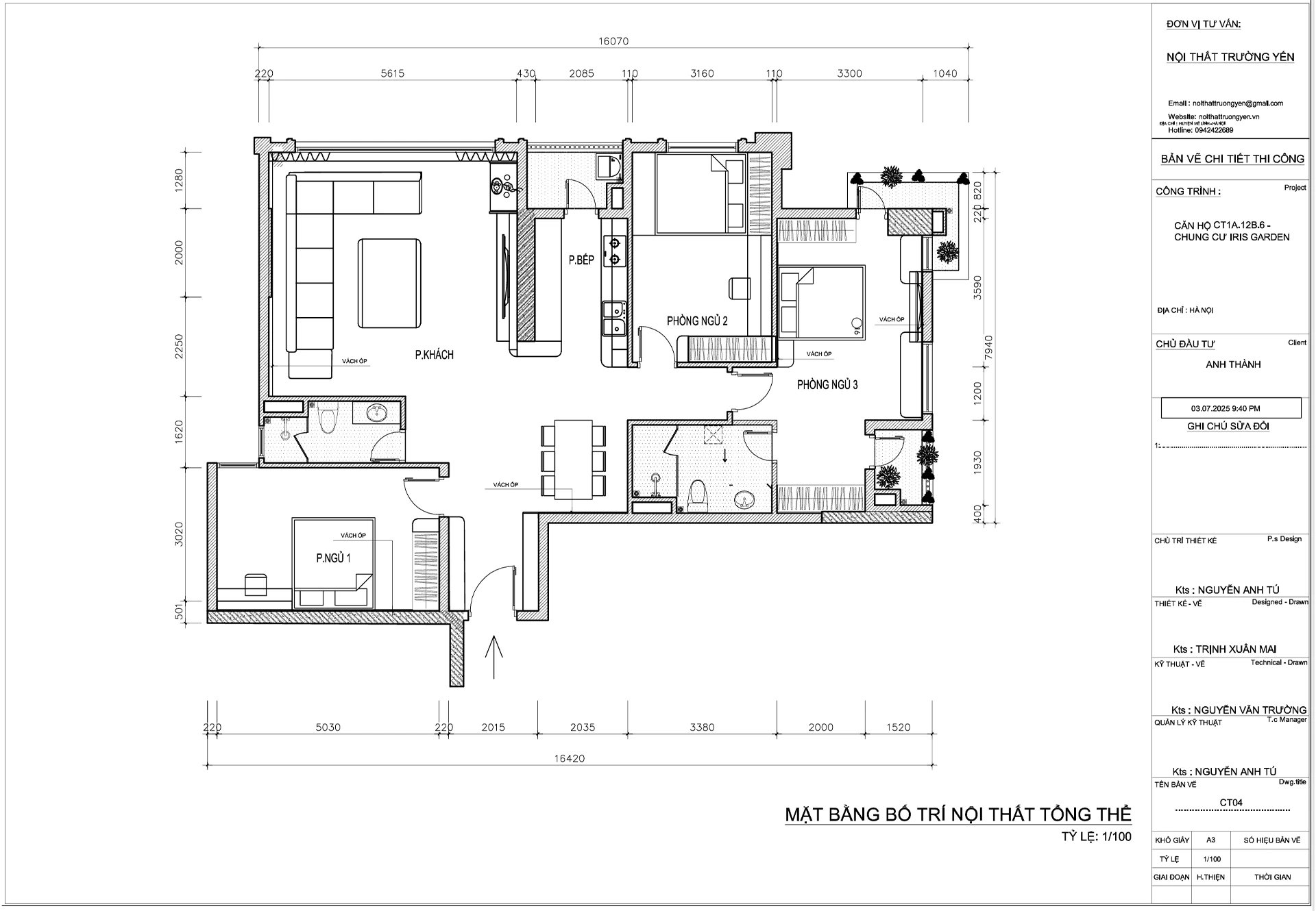
Mặt Bằng Bố Trí Nội Thất
🏠 Bố trí không gian bao gồm:
-
Phòng khách và bếp liên thông: Thiết kế mở với điểm nhấn là hệ vách trang trí và kệ tivi sang trọng, vừa ngăn chia không gian tinh tế, vừa giữ sự liên kết.
-
Phòng ngủ master và phòng trẻ em: Mỗi phòng đều có hệ tủ liền tường, giường bệt hiện đại, bàn học hoặc bàn làm việc tiện dụng, tạo nên không gian sống linh hoạt, thông minh.
-
Khu vệ sinh và phòng ăn: Gọn gàng, hiện đại với tone màu nhã nhặn, sử dụng thiết bị cao cấp cùng hệ tủ lavabo tiện dụng.

1: 3D & Thực Tế Nội Thất Phòng Khách Bếp







Mục Ảnh Thực Tế







2: 3D & Thực Tế Nội Thất Phòng Master

3: 3D & Thực Tế Nội Thất Phòng Con Trai




4: 3D & Thực Tế Nội Thất Phòng Con Gái





3D & Thực Tế Nội Thất Phòng Wc



