Mặt Bằng Nội Thất Tầng 1

1: 3D Phòng Khách - Bếp Tầng 1.
Không gian phòng khách – Sang trọng và ấm cúng
Phòng khách nổi bật với hệ tủ trang trí và kệ trưng bày đồ sưu tầm. Gia chủ là người đam mê cổ vật, nên kiến trúc sư đã bố trí nhiều mảng tủ gỗ với ánh sáng hài hòa, giúp tôn vinh vẻ đẹp tinh xảo của từng món đồ.
Bàn ghế gỗ gõ đỏ thiết kế theo phong cách truyền thống kết hợp hiện đại, vừa bề thế, vừa tinh tế, mang lại sự thoải mái cho gia chủ và khách đến thăm.


![]() |
![]() |
![]() |
![]() |



Phòng bếp – Sự tiện nghi đẳng cấp
Không gian bếp – ăn được thiết kế liên thông, sử dụng tủ bếp gỗ gõ đỏ kết hợp mặt đá tự nhiên vân đen sang trọng, tạo nên điểm nhấn vừa hiện đại, vừa đậm chất Á Đông.
Khu vực bàn ăn với ánh sáng tự nhiên và hệ thống đèn thả hiện đại, giúp mỗi bữa cơm gia đình trở thành khoảnh khắc ấm áp, trọn vẹn.






Mặt Bằng Nội Thất Tầng 2.

2: Thiết Kế Nội Thất Phòng Master.
Phòng ngủ – Tổ ấm riêng tư và thư giãn
Các phòng ngủ được thiết kế tinh tế, với tủ quần áo âm tường gỗ gõ đỏ, giường và bàn phấn đồng bộ, mang lại sự tiện nghi tối đa. Tone màu nâu trầm ấm kết hợp cùng ánh sáng vàng dịu, giúp gia chủ tận hưởng giấc ngủ sâu và không gian nghỉ ngơi thư thái.





3: Thiết Kế Nội Thất Sảnh Thang.

4: Thiết Kế Nội Thất Phòng Shc + Thư Viện.






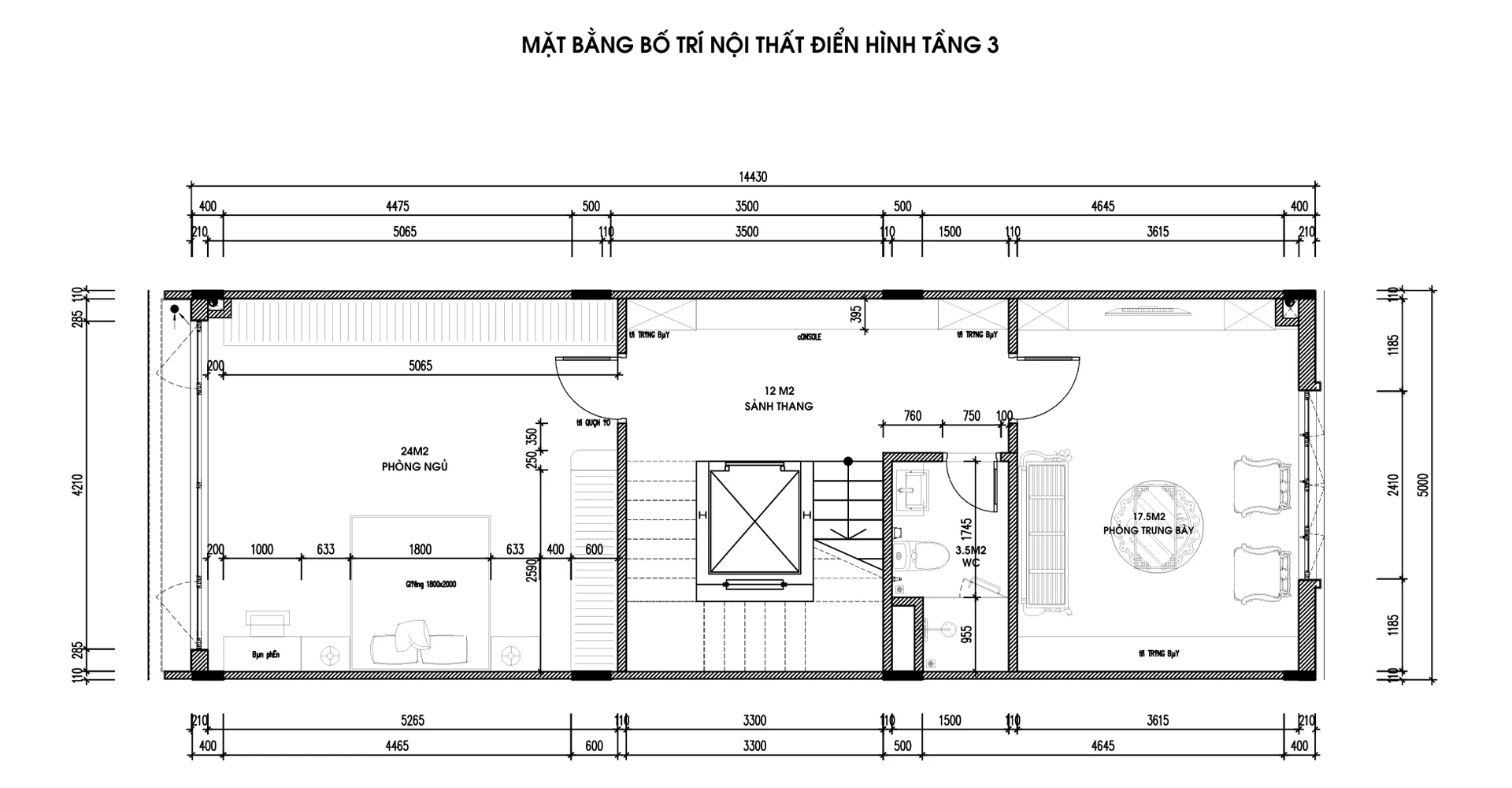
Mặt Bằng Nội Thất Tầng 3.

5: Thiết Kế Nội Thất Phòng Ngủ Con.





6: Thiết Kế Nội Thất Sảnh Thang.

7: Thiết Kế Nội Thất Phòng Shc + Trưng Bày.
.




Mặt Bằng Nội Thất Tầng 4

8: Thiết Kế Nội Thất Phòng Tiếp Khách + Trà Đạo.






9: Thiết Kế Nội Thất Phòng Giặt.



Tổng kết
Công trình biệt thự liền kề tại Vinhomes Ocean Park 3 là minh chứng rõ nét cho sự kết hợp hài hòa giữa chất liệu gỗ tự nhiên cao cấp và thiết kế tinh xảo. Với sự tỉ mỉ trong từng chi tiết, công trình không chỉ mang đến không gian sống tiện nghi mà còn khẳng định gu thẩm mỹ và đẳng cấp của gia chủ.



