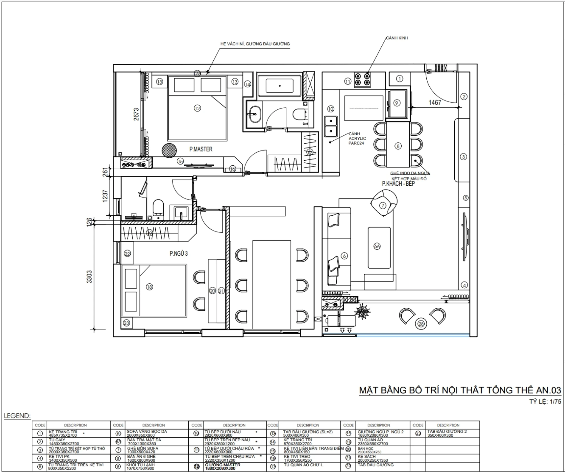
1: MẶT BẰNG

2: THIẾT KẾ PHÒNG KHÁCH BẾP




![]() |
![]() |

3: THIẾT KẾ PHÒNG NGỦ MASTER.

![]() |
![]() |
![]() |
![]() |

4: THIẾT KẾ PHÒNG NGỦ BÉ TRAI.




5: BÁO GIÁ CHI TIẾT NỘI THẤT.
![]() |
![]() |
![]() |
![]() |
(Esc)
Căn hộ tại The Zei (p403) là một trong những công trình nổi bật của Trường Yến trong phân khúc nội thất tân cổ điển hiện đại. Sự kết hợp tinh tế giữa chất liệu cao cấp, bố cục thông minh và điểm nhấn nghệ thuật đã tạo nên một không gian sống vừa sang trọng, vừa gần gũi – đúng với mong muốn ban đầu của gia chủ.
Phòng khách được xử lý mạnh về hiệu ứng ánh sáng và chiều sâu với trần gương phản chiếu kết hợp cùng hệ điều hòa âm trần âm tường, tạo cảm giác thoáng đãng và cao cấp. Bộ sofa và bàn ăn theo phong cách tân cổ điển góp phần tăng vẻ đẹp mềm mại, quý phái mà không bị rườm rà. Đặc biệt, hệ tủ phòng thờ thiết kế với chi tiết hoa sen, có thể mở ra khi sử dụng và đóng lại để tạo sự riêng tư, là điểm nhấn độc đáo vừa linh thiêng vừa thẩm mỹ.
Toàn bộ hệ tủ giày – tủ thờ – kệ tivi được thiết kế liền mạch, tạo sự liên kết xuyên suốt trong không gian, giữ cho căn hộ luôn gọn gàng và đồng bộ. Gỗ MDF lõi xanh chịu ẩm phủ Melamine và Acrylic An Cường là vật liệu chính được sử dụng, mang lại độ bền cao, màu sắc sang trọng và bề mặt dễ vệ sinh.
Phòng ngủ master mang lại ấn tượng mạnh với vách nỉ đầu giường được xử lý theo hình “tia nắng mặt trời”, kết hợp cùng vách gương đen phản chiếu, tạo chiều sâu và cảm xúc riêng biệt. Hệ tủ áo cánh kính đồng bộ, vừa đẹp mắt vừa tối ưu công năng lưu trữ.
Tổng thể công trình là sự phối hợp mạch lạc giữa thẩm mỹ – phong cách – vật liệu – công năng. Bảng báo giá chi tiết đã được đính kèm ở cuối trang, thể hiện rõ sự minh bạch và chuyên nghiệp của Trường Yến trong từng dự án.
1: MẶT BẰNG

2: THIẾT KẾ PHÒNG KHÁCH BẾP




![]() |
![]() |

3: THIẾT KẾ PHÒNG NGỦ MASTER.

![]() |
![]() |
![]() |
![]() |

4: THIẾT KẾ PHÒNG NGỦ BÉ TRAI.




5: BÁO GIÁ CHI TIẾT NỘI THẤT.
![]() |
![]() |
![]() |
![]() |