Thiết Kế Nội Thất Chung Cư Shunshine
Thiết Kế Nội Thất Chung Cư Shunshine
Em Kiên
Hoàng Mai - Hà Nội
171 Triệu
98 m2
Trường Yến Architecture

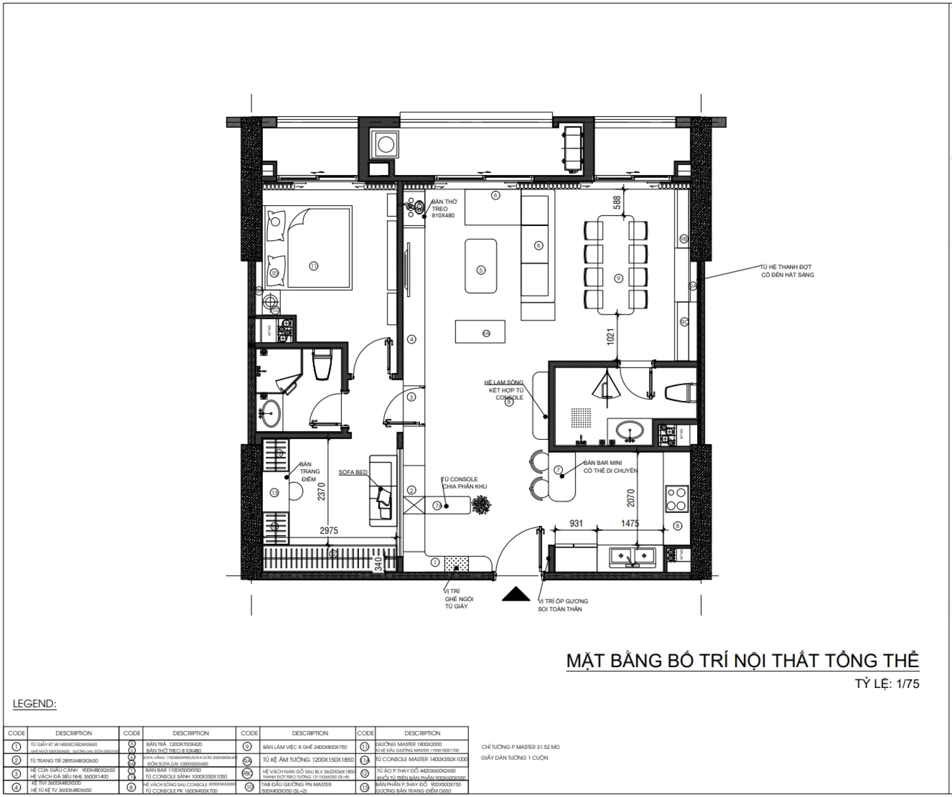
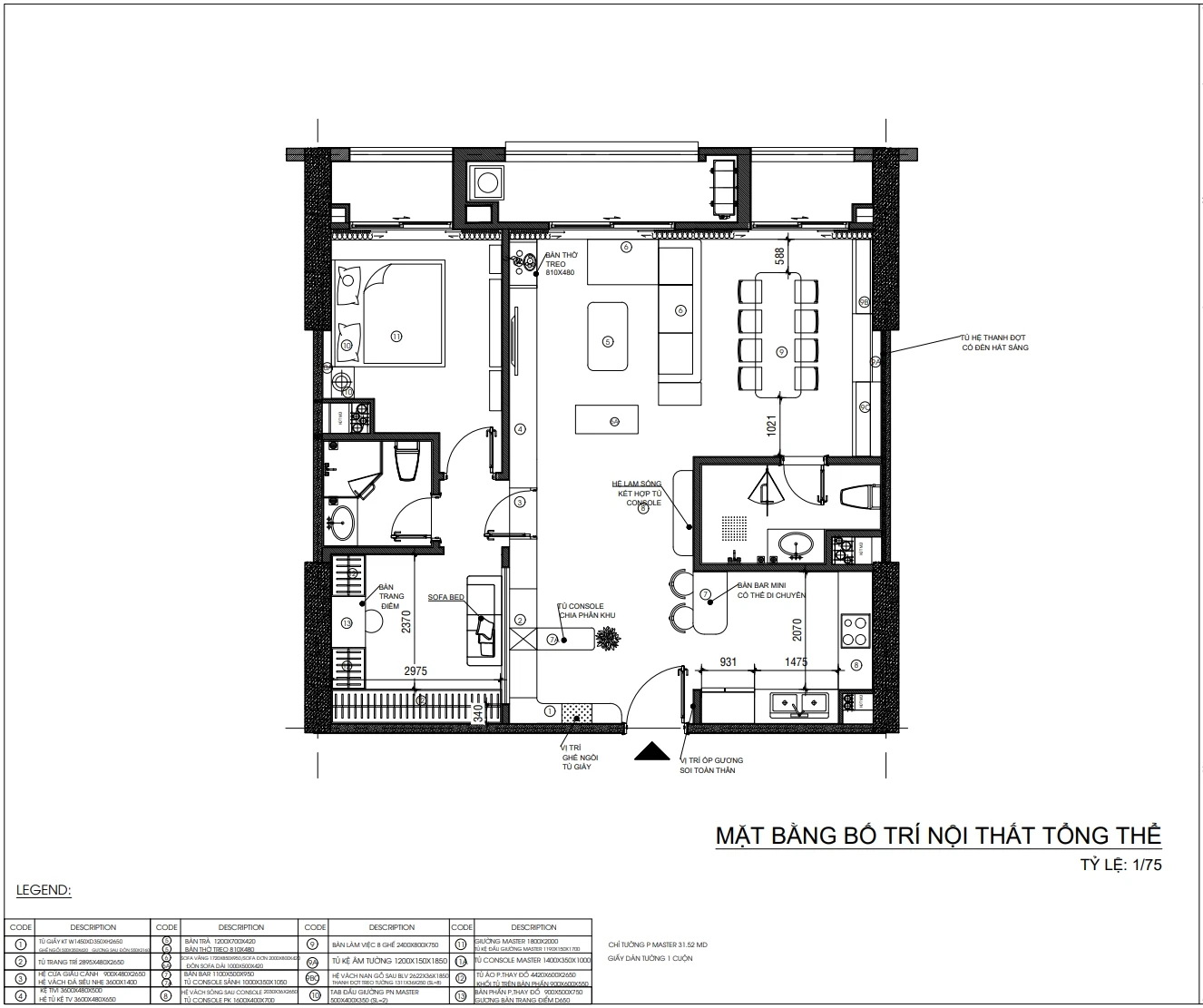
1: MẶT BẰNG.

TRUNG KIÊN

2: THIẾT KẾ PHÒNG KHÁCH BẾP. 

1200 x 670-3

1200 X 680 4-5

1200 X 680 6-4

1200 X 680-5

1200 X 680 2-6

1200 X 680 3-6

1200 X 680 5-3

1200 X 680 7-2

1200 X 680 1-4

3: THIẾT KẾ PHÒNG NGỦ MASTER.

1200 X 680 8-2

1200 x 900 2-7

1200 X 680 9-2

1200 x 900-8

1200 x 900 1-9 1200 x 900 3-5

4: BÁO GIÁ CHI TIẾT NỘI THẤT.

1-9
2-6
3-6
4-3

 

 

 

*Nguồn: Nội Thất Trường Yến