Thiết Kế Nội Thất Chung Cư Royal City
Dự án:
Thiết Kế Nội Thất Chung Cư Royal City
Thiết kế
Trường Yến Architecture
Căn hộ Royal City được Trường Yến thiết kế và thi công trọn gói theo phong cách hiện đại, cá tính – chú trọng công năng, thẩm mỹ và sự đồng bộ trong không gian sống.
Phòng khách nổi bật với vách sau sofa tích hợp khu thờ, thiết kế âm gọn gàng, đảm bảo sự trang nghiêm mà vẫn hòa quyện với tổng thể. Trần phòng khách được giật cấp nhẹ và lắp điều hòa âm trần, vừa hiện đại vừa giữ không gian thông thoáng, gọn đẹp. Sàn gỗ xương cá tông ấm kết hợp cùng bộ sofa bọc nỉ cao cấp tạo cảm giác sang trọng mà vẫn gần gũi.
Không gian bếp được bố trí tinh tế với hệ tủ bếp chữ L gọn gàng, sử dụng thiết bị lắp âm hiện đại và tủ lạnh sy by side làm điểm nhấn, vừa tiện nghi vừa đảm bảo thẩm mỹ. Thiết kế bếp nối liền bàn ăn theo hướng mở, giúp không gian luôn sáng và rộng.
Phòng ngủ master ấn tượng với vách đầu giường kết hợp Acrylic, gỗ ấm và gương trà âm tường, tạo chiều sâu và sự sang trọng. Giường nhập khẩu hiện đại được lựa chọn đồng điệu về màu sắc và phong cách. Hai phòng ngủ con phối màu riêng theo sở thích từng bé – nhẹ nhàng và cá tính – giúp tạo không gian sống riêng biệt nhưng vẫn giữ tinh thần chung của căn hộ.
Toàn bộ nội thất sử dụng gỗ MDF lõi xanh chống ẩm An Cường, hoàn thiện bằng Melamine và Acrylic, kết hợp phụ kiện Hafele cao cấp. Công trình được thi công chuẩn chỉnh, đúng tiến độ, đúng thiết kế, bàn giao đồng bộ và sắc nét.
📋 Bảng báo giá chi tiết đã được đính kèm cuối bài, giúp khách hàng dễ dàng tham khảo và đưa ra quyết định minh bạch.
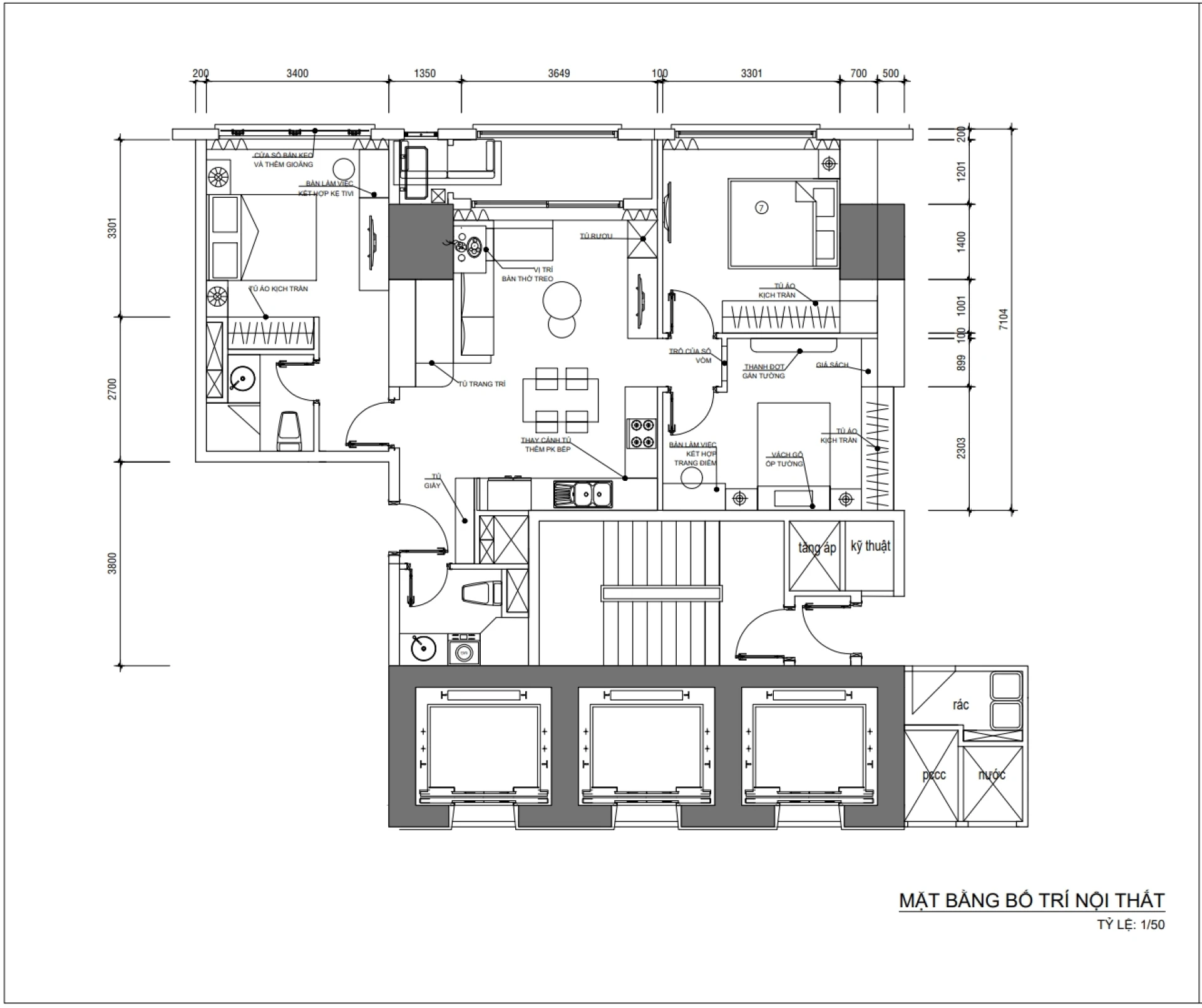
1: MẶT BẰNG.

2: Nội Thất Phòng Khách Bếp
Phương án 1:

Phương án 2:
3: Nội Thất Phòng Master


4: Nội Thất Phòng Ngủ Con Út
5: Nội Thất Phòng Con Trai Lớn



6: Mục Báo Giá Nội Thất