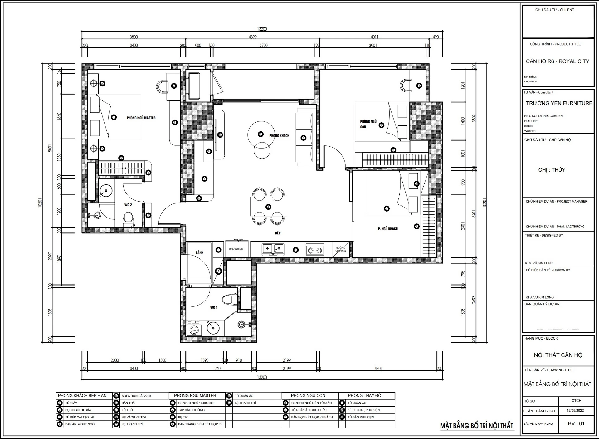
1: PHƯƠNG ÁN MẶT BẰNG.

2: PHÒNG KHÁCH BẾP { Phương án bỏ lam trần và màu sáng }


![]()  | 
![]()  | 

+: PHƯƠNG ÁN MÀU ĐẬM VÀ CÓ LAM TRẦN.




![]()  | 
![]()  | 
3: PHÒNG MASTER.




4: PHÒNG NGỦ CON TRAI.



5: PHÒNG NGỦ CON GÁI.


                                            
                                            (Esc)
                                        
                                        
                                        
                                                        
                                                        
                                                        
                                                        
                                                        
                                                        
                                                        
                                                        
                                                        
                                                        
                                                        
                                                        
                                                        
                                                        
                                                        
                                                        
                                                        
                                                        
                                                        
                                                        
                                                        
                    


