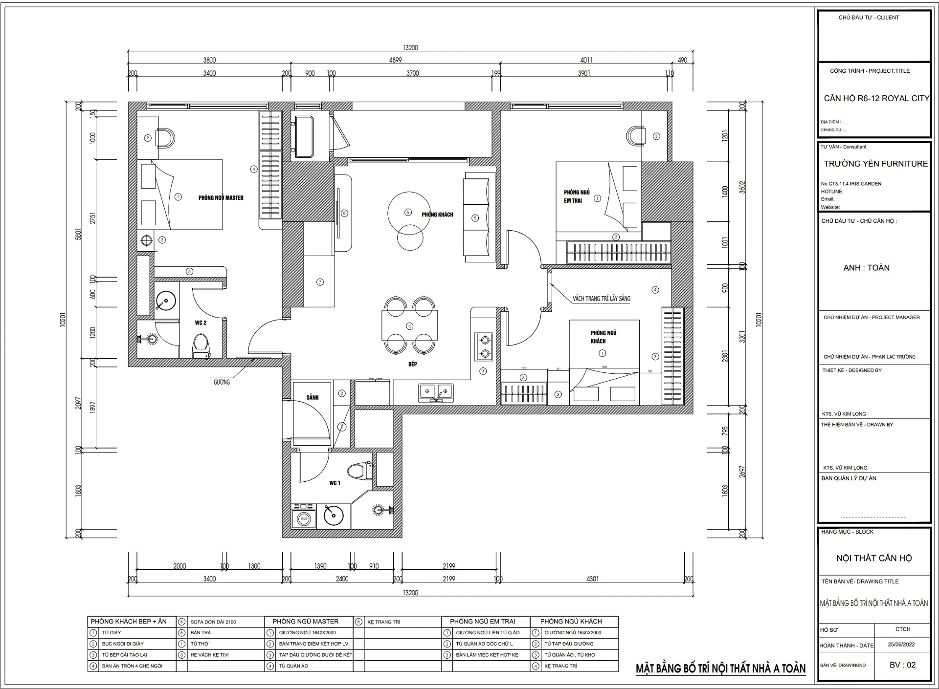
1: PHƯƠNG ÁN MẶT BẰNG

2: PHÒNG KHÁCH BẾP.



![]() |
![]() |

3: PHÒNG MASTER


![]() |
![]() |
4: PHÒNG NGỦ CON TRÁI



5: PHÒNG NGỦ CON GÁI.


(Esc)
Căn hộ Royal City được Nội thất Trường Yến thiết kế và thi công trọn gói theo phong cách Indochine hiện đại, mang vẻ đẹp thanh lịch, ấm cúng nhưng vẫn toát lên sự tinh tế đặc trưng. Đây là không gian sống lý tưởng cho những gia chủ yêu thích sự giao thoa giữa truyền thống và hiện đại.
Toàn bộ nội thất được kết hợp linh hoạt giữa gỗ công nghiệp An Cường cao cấp và gỗ sồi tự nhiên, đảm bảo độ bền, màu sắc sang trọng và cảm giác ấm áp trong từng chi tiết. Nổi bật trong không gian là hệ tủ quần áo cánh mây đan, mang dấu ấn Á Đông nhẹ nhàng nhưng đầy cá tính. Các cánh tủ được xử lý kiểu khung balo bo mềm, tạo nên đường nét tinh tế, mềm mại và cao cấp hơn hẳn kiểu cánh phẳng truyền thống.
Không gian sinh hoạt chung sử dụng sàn gỗ xương cá cùng bộ sofa và bàn ăn kết hợp giữa khung gỗ & đệm nỉ mặt đá nhân tạo Vicostone, giúp cân bằng giữa sự vững chắc và thoải mái. Tổng thể căn hộ được thiết kế với bố cục mở, ánh sáng tự nhiên chan hòa, mỗi chi tiết đều được trau chuốt theo đúng tinh thần "đẹp vừa đủ – chất vượt trội".
Đây là một trong những công trình tiêu biểu của Trường Yến, thể hiện rõ nét khả năng thiết kế cá nhân hóa, tối ưu vật liệu và thi công chuẩn xác đến từng milimet.
1: PHƯƠNG ÁN MẶT BẰNG

2: PHÒNG KHÁCH BẾP.



![]() |
![]() |

3: PHÒNG MASTER


![]() |
![]() |
4: PHÒNG NGỦ CON TRÁI



5: PHÒNG NGỦ CON GÁI.

