Thiết Kế Nội Thất Chung Cư Iris Gaden
Dự án:
Thiết Kế Nội Thất Chung Cư Iris Gaden
Địa điểm:
30 Trần Hữu Dực - Nam Từ Liêm - Hà Nội
Thiết kế
Trường Yến Architecture
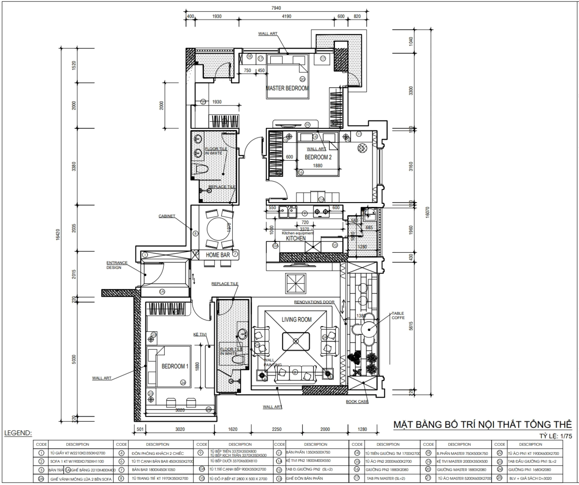
Căn hộ 133m² tại Iris Garden là một dự án tiêu biểu của Trường Yến trong phân khúc thiết kế – thi công nội thất Tân cổ điển hiện đại, với nhiều chi tiết đắt giá được cải tạo và nâng cấp toàn diện theo yêu cầu của gia chủ.
Một trong những điểm nổi bật nhất chính là việc cải tạo lại không gian phòng khách để mở thêm một ban công riêng biệt – giải pháp thiết kế sáng tạo, giúp tăng cường ánh sáng tự nhiên và mang đến không khí trong lành, thư giãn cho cả căn hộ. Việc xử lý kết cấu và bố cục lại mặt bằng được đội ngũ Trường Yến thực hiện chuẩn chỉnh, vừa đảm bảo thẩm mỹ, vừa không ảnh hưởng đến công năng chung.
Không gian phòng khách được nhấn bằng trần giật cấp hoa văn tỉ mỉ, kết hợp bộ sofa khung gỗ Sồi bọc nỉ cao cấp, tạo cảm giác sang trọng mà vẫn ấm áp. Vách kính ngăn giữa khu tủ giày và phòng khách vừa đủ riêng tư, vừa giữ sự thông thoáng chung. Khu vực bàn ăn cũng được đầu tư kỹ lưỡng với vách gương soi toàn phần, tạo chiều sâu và tăng cảm giác rộng rãi.
Toàn bộ nội thất sử dụng MDF chịu ẩm An Cường, hoàn thiện bằng sơn Inchem của Mỹ, đảm bảo độ bền cao và sắc nét từng chi tiết. Các đường phào, nẹp chỉ được thi công tỉ mỉ, đồng bộ, giúp không gian giữ được đúng tinh thần Tân cổ điển – sang trọng, thanh lịch nhưng không nặng nề.
Đặc biệt, bảng báo giá chi tiết đã được đính kèm ở cuối trang, giúp khách hàng có thể tham khảo và đối chiếu minh bạch về chi phí đầu tư thực tế. Đây là công trình cho thấy rõ thế mạnh của Trường Yến: thiết kế linh hoạt – thi công chuẩn xác – chất lượng đồng bộ.
1: MẶT BẰNG

2: THIẾT KẾ NỘI THẤT PHÒNG KHÁCH BẾP.









3: THIẾT KẾ NỘI THẤT PHÒNG MASTER.




4: THIẾT KẾ NỘI THẤT PHÒNG BÉ TRAI.



5: THIẾT KẾ NỘI THẤT PHÒNG NGỦ PHỤ.



BÁO GIÁ CHI TIẾT NỘI THẤT.