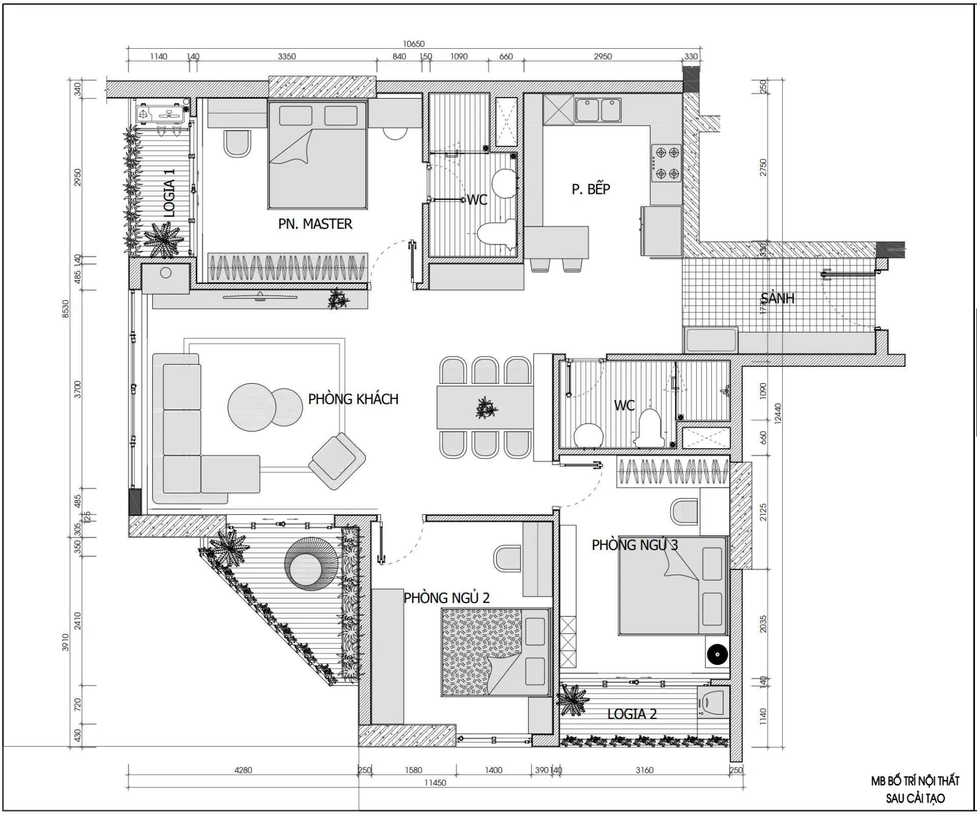
1: Phương Án Mặt Bằng

2: Thi Công Nội Thất Phòng Khách Bêp
- Công trình tự chụp thủ công bằng điện thoại, và trong lúc chưa hoàn thiện xong, nên sản phẩm chụp sẽ không được sắp xếp gọn gàng và nước ảnh sẽ không được đẹp bằng chụp bằng máy ảnh, và thực tế.







|  |  | 
|  |  | 

|  |  | 
3: Thi Công Nội Thất Phòng Master





3: Thi Công Nội Thất Phòng Con Trai


|  |  | 
3: Thi Công Nội Thất Phòng Con Gái
- Phòng này chỉ chụp được tủ vì sản phẩm chưa hoàn thiện xong, và sau khi làm xong không quay lại chụp thêm
|  |  | 
                                            
                                            (Esc)
                                        
                                        
                                         
                                                         
                                                         
                                                         
                                                         
                                                         
                                                         
                                                         
                                                         
                                                         
                                                         
                                                         
                                                         
                                                         
                                                         
                                                         
                                                         
                                                         
                                                         
                                                         
                                                         
                                                         
                                                         
                                                         
                                                         
                                                         
                                                         
                     
                     
                     
                     
                     
                    