Thiết Kế & Thi Công Chung Cư Iris Gaden
Thiết Kế & Thi Công Chung Cư Iris Gaden
Thiết Kế & Thi Công Chung Cư Iris Gaden
Cô Dâng
30 Trần Hữu Dực - Nam Từ Liêm - Hà Nội
324 Triệu
133 m2
Trường Yến Architecture

Thiết Kế & Thi Công Chung cư Iris Gaden, bao gồm Thi công phần Nội Thất, Chất liệu gỗ An Cường, Thi công phần thô gồm, giật trần thạch cao, Sơn lại căn hộ và lắp điều hòa Ấm trần. 

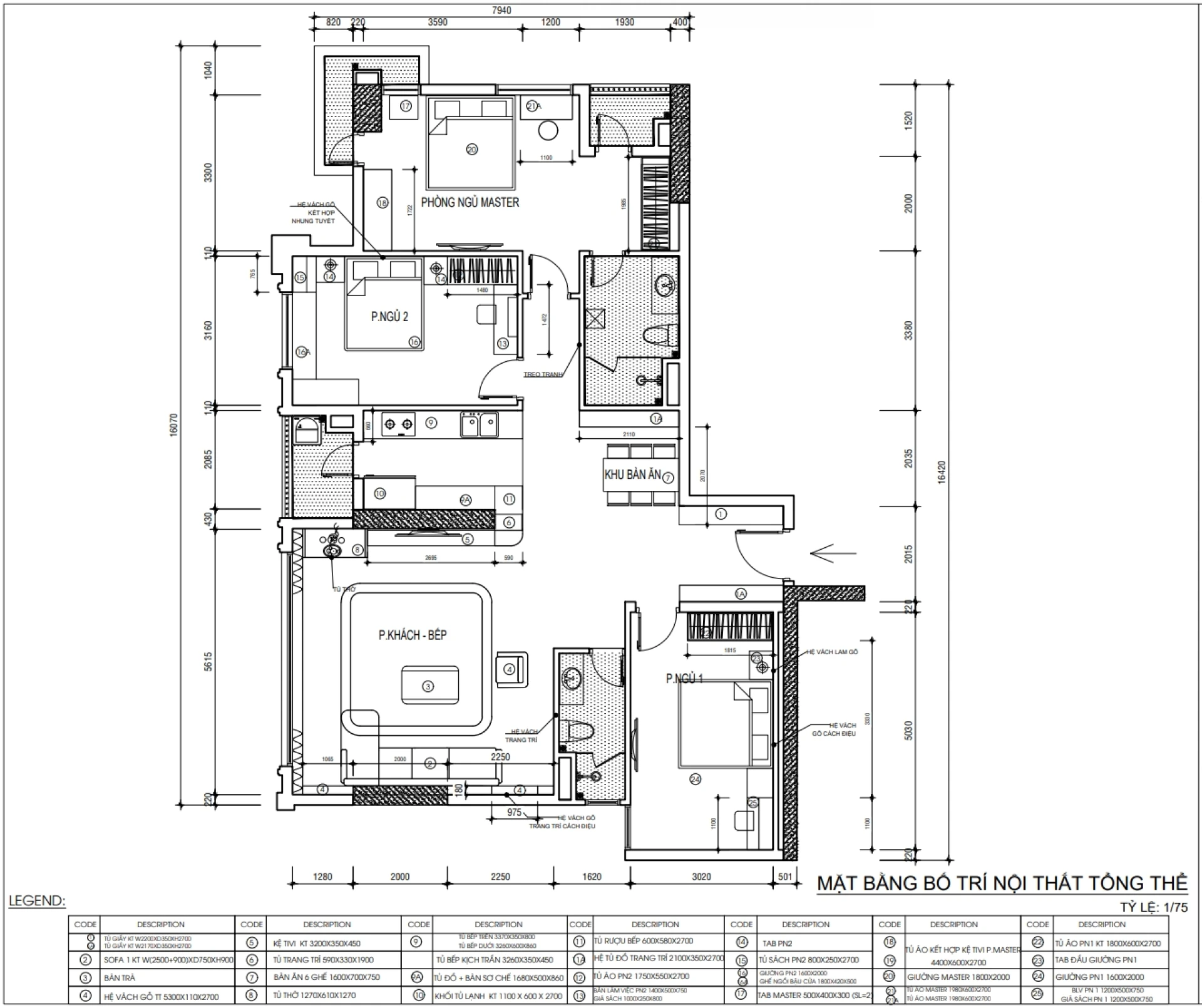
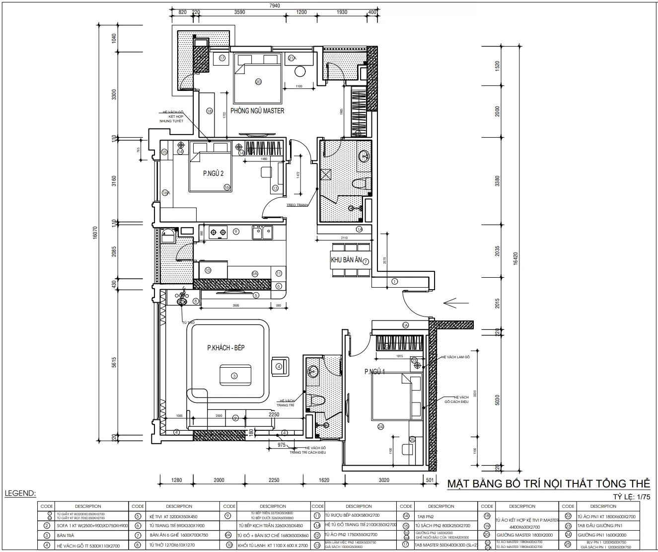
1: MẶT BẰNG.

CÔ DÂNG-1
Mặt bằng này có chút thay đổi so với Thiết kế, vì Chủ nhà thay đổi theo công năng sử dụng của Chủ nhà, và bớt lại 1 số đồ đạc.

 

2: 3D & THIẾT KẾ PHÒNG KHÁCH BẾP. 

1200 x 670 14

1200 x 670 9 1200 x 670 12
1200 X 900 5-4 1200 X 900 3-4

1200 x 670 13

1200 x 670 15

1200 X 900 7-4 1200 X 900 4-4
850 x 1100 15 850 x 1100 16

1200 x 670 7

850 x 1100 11 850 x 1100 18

1200 x 670 10

850 x 1100 12 850 x 1100 10

1200 x 670 11

850 x 1100 9 850 x 1100 8

1200 x 670-1

1200 x 670 8 1200 x 670 6
850 x 1100 4 850 x 1100 13

1200 x 670 4

850 x 1100 6 850 x 1100 14

3: 3D & THỰC TẾ PHÒNG MASTER. 

1200 x 670 1-1

1200 X 900 6-4

1200 x 670 16 1200 x 670 5
1200 X 900-6 1200 X 900 2-6
850 x 1100 2 850 x 1100 17

1200 X 1200-7

4: THIẾT KẾ NGỦ ÔNG BÀ.

1200 X 900 1-6

1200 X 900 -3 1200 X 900 2-5

5: BÁO GIÁ CHI TIẾT NỘI THẤT.

1-10
2-7
3-7
4-4
*Nguồn: Nội Thất Trường Yến