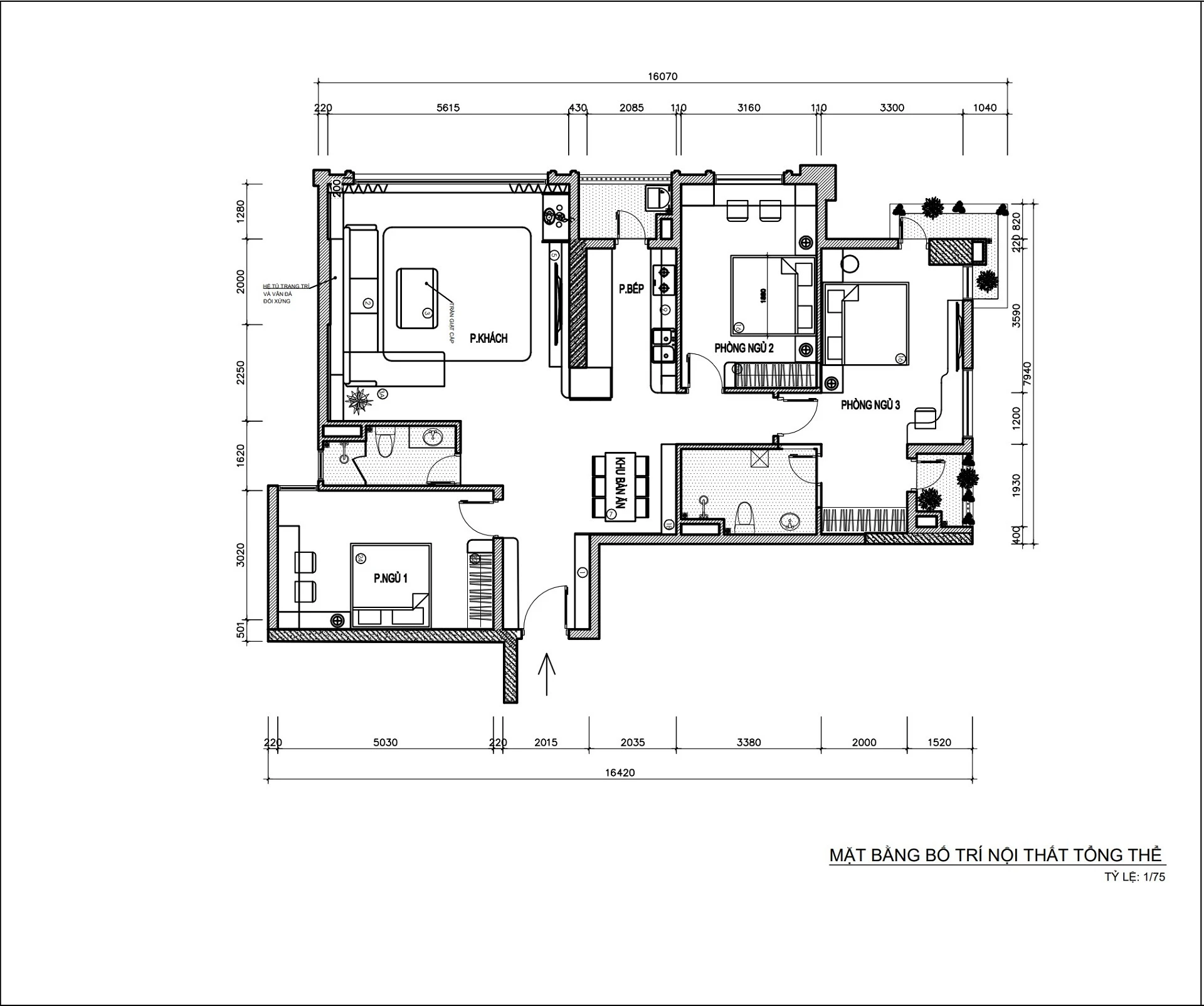
1. MẶT BẰNG BỐ TRÍ NỘI THẤT

2. PHÒNG KHÁCH BẾP









3. PHÒNG MASTER
- Có 2 phương án 1 phương án cầu kỳ ốp vách nhiều, và 1 phương án đơn giản và giường bằng gỗ.



Phương án 2. ốp vách sẽ nhiều hơn.




4. PHÒNG NGỦ CON TRAI




5. PHÒNG NGỦ CON GÁI
cũng có 2 phương án khác nhau.
Phương án 1. màu sắc ấm và kiểu đơn giản,



Phương án 2. màu sắc cá tính hơn và giường thay bằng Nỉ.



                                            
                                            (Esc)