Liên hệ: 0942 422 689 - 0961 422 689
Đăng ký thiết kế
Trang chủ
Nhà xưởng
Dịch vụ
DỰ ÁN HOÀN THÀNH
Chung cư
Biệt thự nhà phố
Khách sạn, nhà hàng
DỰ ÁN THIẾT KẾ
Thiết kế chung cư
Thiết kế Biệt thự - Nhà phố
Thiết kế Khách sạn - Nhà hàng
DỰ ÁN THI CÔNG
Thi công Chung cư
Thi công Biệt thự - Nhà phố
Thi công Khách sạn - Nhà hàng
Nội thất rời
Phòng khách
- Bàn ghế gỗ
- Kệ tivi phòng khách
- Vách trang trí
- Bàn trà
- Tủ giày
- Tủ đồ
Phòng ngủ
- Tủ quần áo
- Giường ngủ
Phòng trẻ em
- Giường tầng
- Phòng trẻ em
Phòng bếp
- Bàn ghế ăn
Phòng thờ
- Phòng thờ
SOFA
- Sofa Da
- Sofa nỉ
- Sofa 1 + 2 + 3
- Sofa văng
Tin tức
Đăng ký tư vấn miễn phí
Open menu
Trang chủ
Nhà xưởng
Dịch vụ
DỰ ÁN HOÀN THÀNH
- Chung cư
- Biệt thự nhà phố
- Khách sạn, nhà hàng
DỰ ÁN THIẾT KẾ
- Thiết kế chung cư
- Thiết kế Biệt thự - Nhà phố
- Thiết kế Khách sạn - Nhà hàng
DỰ ÁN THI CÔNG
- Thi công Chung cư
- Thi công Biệt thự - Nhà phố
- Thi công Khách sạn - Nhà hàng
Nội thất rời
- Phòng khách
- Bàn ghế gỗ
- Kệ tivi phòng khách
- Vách trang trí
- Bàn trà
- Tủ giày
- Tủ đồ
- Phòng ngủ
- Tủ quần áo
- Giường ngủ
- Phòng trẻ em
- Giường tầng
- Phòng trẻ em
- Phòng bếp
- Bàn ghế ăn
- Phòng thờ
- Phòng thờ
- SOFA
- Sofa Da
- Sofa nỉ
- Sofa 1 + 2 + 3
- Sofa văng
Tin tức
Trang chủ /
DỰ ÁN THIẾT KẾ /
Chi tiết
Thiết Kế Nội Thất Nhà Phố
Báo giá căn này
Yêu cầu tư vấn
Thiết Kế Nội Thất Nhà Phố
Dự án:
Thiết Kế Nội Thất Nhà Phố
Khách hàng:
Anh Đông
Địa điểm:
Thạch Thất - Hà Nội
Kinh phí:
1xx Triệu
Diện tích:
40.3 m2
Thiết kế
Trường Yến Architecture
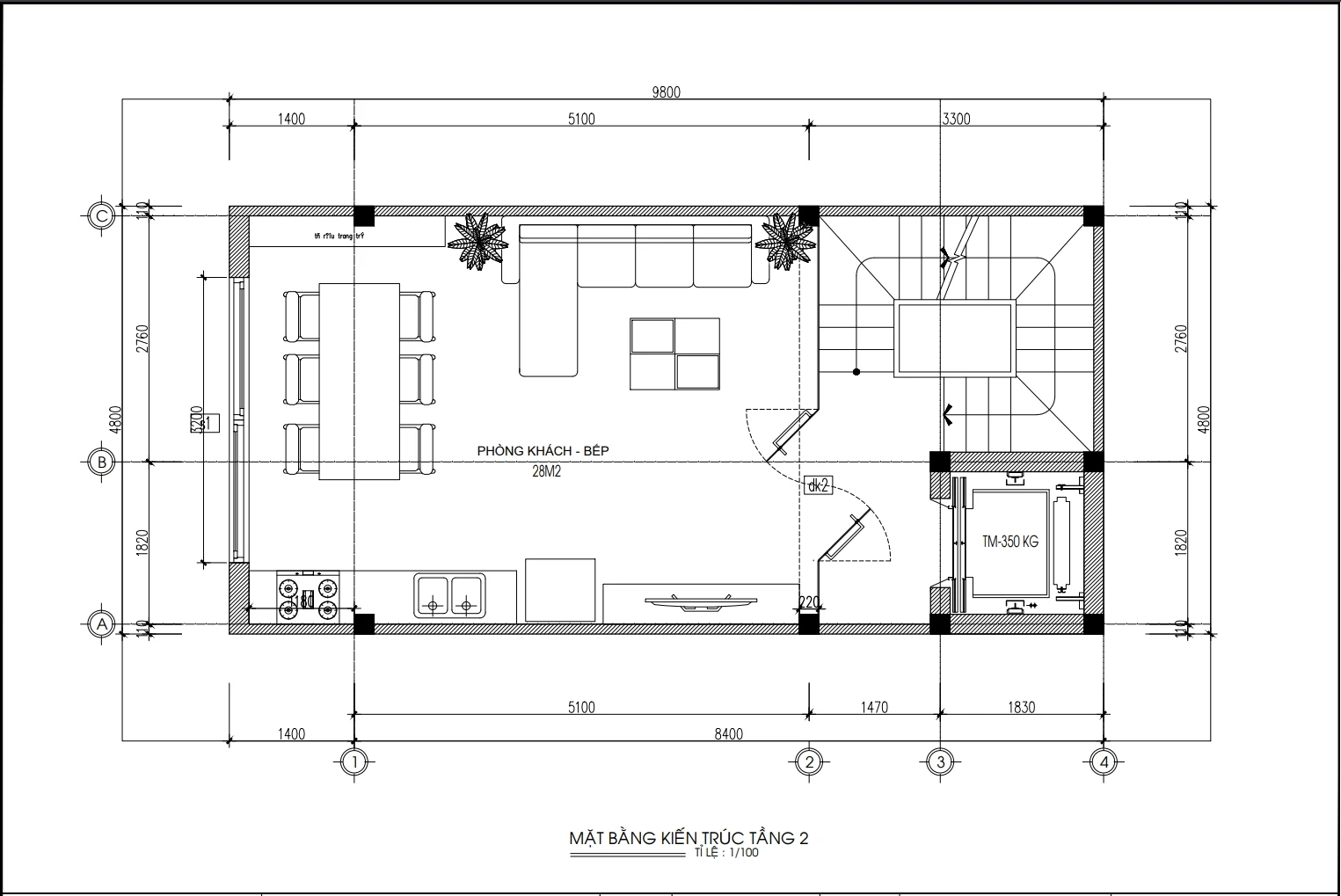
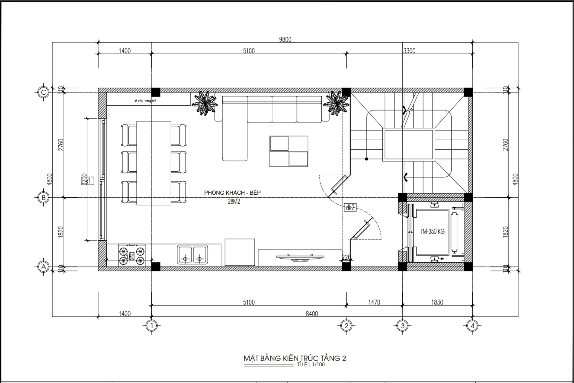
1: Mặt Bằng.
2THIẾT KẾ NỘI THẤT PHÒNG KHÁCH BẾP.
(Esc)
*Nguồn:
Công ty TNHH
Nội Thất Trường Yến
Các dự án liên quan
DỰ ÁN THIẾT KẾ
hoàn thành:
6/2025
Thiết Kế Nội Thất Biệt Thự Liền Kề Vinhomes Ocean Park 3
DỰ ÁN THIẾT KẾ
hoàn thành:
6/2025
-
chi phí:
1,5 tỷ Triệu
Thiết Kế & Thi Công Biệt Thự Ciputra
DỰ ÁN THI CÔNG
hoàn thành:
10/2024
-
chi phí:
500 Triệu
Thiết Kế & Thi Công Nhà Phố Phủ Lý - Hà Nam
DỰ ÁN THIẾT KẾ
hoàn thành:
3/2025
-
chi phí:
3xx Triệu
Thiết Kế Nội Thất Nhà Phố Kim Giang
DỰ ÁN THI CÔNG
-
chi phí:
4xx Triệu
Thiết Kế & Thi Công Chung Cư Iris Gaden
DỰ ÁN THI CÔNG
hoàn thành:
10/2024
-
chi phí:
1,5 tỷ Triệu
Thiết Kế & Thi Công Biệt Thự Vĩnh Phúc
Tin nhắn
Zalo
Điện thoại
Liên hệ
Đầu trang
(Esc)
(Esc)